Věznice Uherské Hradiště
Historickou budovu věznice členíme do tří základních částí v logice základního prostorového uspořádání stávající budovy. Západní části se stává soudem, severní střední část muzeem a východní zastupitelstvím a probační službou. Každá část má vlastní vstup, předprostor. Každá nabízí jiný charakter odpovídající instituci, která v ní sídlí. Jedním ze zásadních aspektů je i to, jaké části budova jsou otevřeny veřejnosti. Každá instituce má jasně
prostorově i provozně oddělenou část budovy. Prostory podkroví jsou využity pro technologické zázemí budovy. Do historické budovy věznice je zasahováno v minimální možné míře. Jsou doplněny nové vstupy do prostor muzea a zastupitelství a společně s novým křídlem soudu je proměněna historická západní fasáda budovy na v arkádu vnitřního foyer. A právě adice nového soudního křídla je jediným, ale za to výrazným, soudobým vstupem do areálu věznice.
POPIS PROVOZNÍHO A DOPRAVNÍHO ŘEŠENÍ
Historickou budovu věznice členíme do tří základních částí v logice základního prostorového uspořádání stávající budovy. Západní části se stává soudem, severní střední část muzeem a východní zastupitelstvím a probační službou. Každá část má vlastní vstup, předprostor. Každá nabízí jiný charakter odpovídající instituci, která v ní sídlí. Jedním ze zásadních aspektů je i to, jaké části budova jsou otevřeny veřejnosti. Každá instituce má jasně
prostorově i provozně oddělenou část budovy. Prostory podkroví jsou využity pro technologické zázemí budovy. Do historické budovy věznice je zasahováno v minimální možné míře. Jsou doplněny nové vstupy do prostor muzea a zastupitelství a společně s novým křídlem soudu je proměněna historická západní fasáda budovy na v arkádu vnitřního foyer. A právě adice nového soudního křídla je jediným, ale za to výrazným, soudobým vstupem do areálu věznice.
Část soudní západní
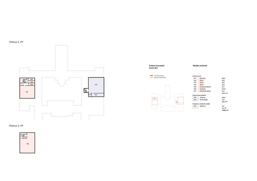
Soud je umístěn do západní části areálu, směrem k centru. V novém křídle budovy, které je vloženo menšího západního dvora, jsou umístěny soudní síně a kancelářské a jednací místnosti. Mezi historickou budovou a novým křídlem je převýšené vstupní foyer, do kterého je orientován v podstatě celý provoz soudu. Jakkoli je foyer otevřené jsou jasně odděleny části přístupné veřejnosti od částí soukromých. Toto dělení v podstatě odpovídá členění na část historickou a novou, ze které jsou přístupné první 3 nadzemní podlaží. Původní východní fasáda dvora je otevřena právě tak, aby se prostory chodeb mohly otevřít od nového foyer. Ochozy po obvodu foyer slouží ve veřejné části zároveň jako čekárny před soudními síněmi. Nové křídlo je v přízemí otevřeno do ulice Politických vězňů a ustoupené a vytváří tak, co největší předprostor této instituci. Fasáda nového
křídla je dvouplášťová. Vnější skleněná vrstva je z průhledná a sjednocuje celkový charakter nového křídla a od vnitřní fasády je odstoupena o cca 50 cm. Vnitřní vrstva fasády je členěna okny podle vnitřního uspořádání budovy. Nové křídlo stojí na pevném betonovém soklu.
Jednotlivé místnosti v historické budově jsou umístěny v logice stávajících dispozic s minimem zásahů viz koordinační výkres. Severní muzejní část. Drsný charakter budovy je zachován právě v této střední části bývalé věznice. Prostory muzea jsou jasně dispozičně vymezeny a muzeum funguje jako samostatný celek s vlastním charakterem. Veškeré zásahy do stávajícího stavu jsou omezeny na minimum – je upraven prostor vstupu, vložen nutný výtah a toalety, otevřen a opraven je středový prostor samotek tak, aby odpovídal historickým dispozicím. Fasády budov této části zůstávají omšelé, hrubě opravné tak, aby potvrzovaly charakter a depresi místa. Tomu odpovídá i charakter vstupních plechových vrat se zachovaným kukátkem a prostor dvora vymezeného právě omšelými fasádami.
Východní zastupitelská a probační část
Státní zastupitelství využívá dvě křídla přímo přiléhající k východnímu dvoru. Probační služby jsou umístěny do přízemí a podkroví budovy stávajících garáží. Obvodová zeď je v místě dvora otevřena a zůstávají pouze její pilíře, vzniká tak veřejný předprostor, ze kterého se přímo vstupuje do obou institucí. Zásahy v těchto křídlech historické budovy jsou minimální. Otevřen je prostor pro nový vstup, umístěn je nový výtah a schodiště. Otevřeno je historické propojení mezi východním a severním dvorem.
Dvory
Soudní západní dvůr je proměněn ve foyer nového soudu, který se kolem něj obtáčí. Východní dvůr zastupitelství a probačních služeb je otevřen veřejnosti a slouží je předprostor těchto institucí. Severní muzejní dvůr je otevřen novými vraty na východě a brankami na severu. Volně otevřen je od rána do večera, kdy tudy prochází místní a zkracují si cestu centrem. Zároveň je v něm nově umístěna kavárna a salla terrena, které vybízejí k jeho využívání. Jeho západní část může sloužit muzeu pro venkovní instalace. Severní část je členěna v logice historický vězeňských záhonů pro pěstování zeleniny. Doprava Parkovací stání jsou umístěna po obvodu bloku.
Soud využívá parkování přiléhající k původní budově ředitelství věznice. Součástí návrhu je přeřešení prostor před SUPŠ (umprumka) a jejich parkování přiléhající k Velehradské třídě. Parkování OSZ, PMS a návštěvníků muzea je mezi budovami OSZ a PMS. Odstavná stání autobusů uvažujeme v ploše autobusového nádraží, nicméně je možné je případně umístit do ulic v prostoru před vstupem do budovy soudu. Právě ulice Politických vězňů je zároveň upravena – zklidněna tak, abychom kompenzovali její úzký profil.
Krajinářské řešení
Zahrada za zdí/severní zahrada
Zahrada za zdí s pro Uherské Hradiště netypickým divočejším charakterem. Zahrada oživující přilehlé ulice korunami stromů. Slunná zahrada nabízející různé atmosféry. Severní část se záhony s divočejšími výsadbami a mnohokmennými stromy je připomínkou zahrad věznice. Přináší do zahrady stinnější a intimnější prostory. Pobytový trávník se solitérními stromy rozšiřuje možnosti nového využívání bývalých garáží. Plocha trávníku s mnohokmennými výsadbami ve východní části navazuje svým charakterem na stávající bohatý trávobylinný porost. Vnitřní uspořádání nezpevněných měkkých ploch poskytuje místa pro venkovní expozici. Kombinace zpevněných a nezpevněných povrchů umožňuje snadný pohyb zahradou.
Pietní dvůr
Uzavřený stinný dvůr s rastrem osik v mlatovém povrchu je prostorem pietním i prostorem živým, zvoucím k pobytu. Zelený strop nádvoří poskytuje jemný stín. Nezpevněný povrch (MZK) umožňuje volný pohyb po celé ploše dvora. Podél fasád a místy pod stromy jsou vysazeny porosty stínomilných rostlin. Volné prostranství s vodním prvkem /památníkem oživují popínavé rostliny.
Okolí
Před vstupem do střední uměleckoprůmyslové školy je rozšířena zpevněná plocha, travnaté plochy jsou ponechány. Na nárožích školy jsou vysazeny skupiny stromů. Prostor u východní fasády školy vnímáme jako součást Palackého náměstí, kde stín pod stromy vybízí k posezení.
POPIS ENERGETICKÉHO KONCEPTU OBJEKTU A AREÁLU
Hospodárnost
Historická budova bude zateplena v intencích památkové ochrany – výměna oken, zateplení stropu, provedení opatření proti vzlínání vlhkosti do konstrukcí. Konkrétní zdroj teplé vody bude ověřen, nicméně v tuto chvíli lze uvažovat o tepelných čerpadlech země-voda. V rozumné míře lze uvažovat i o rekuperaci pročež mohou být využity prostory podkroví a zvýšené podlahy, kudy budou vedeny veškeré technické sítě, aniž by bylo zasaženo do stávajících konstrukcí. Novostavba pak využívá všechna soudobá opatření pro zvýšení hospodárnosti stavby. Vnitřní obvodový plášť má vhodný poměr prosklených / neprosklených ploch a splňuje tepelně technické požadavky
• vnější plášť sestává z průhledných fotovoltaických článků
• vzduch je rekuperován
• k vytápění / chlazení jsou využity aktivované betonové konstrukce
Voda
Dešťová voda ze střech bude využívána v prostorách zahrady a dvora k zálivce vegetačních ploch a dřevin. Voda ze zpevněných ploch bude sváděna do ploch vegetačních.