Dům nad vinohradem
Nad vinohradem v klidné části Uherského Hradiště ční štít nového rodinného domu. Dům inspirovaný okolními vinařskými domy poklidně splývá se svým okolím. Po výstupu kolem hlav rulandy šedé se odhalí celá stavba. Stojí kolmo ke svahu, tak jak tyto domy stávaly po staletí a zařezává se do něj svým nejnižším podlažím.
Toto podlaží, jež tvoří sokl hlavní části stavby je obloženo přírodním cihelným páskem. Obsahuje dřevěná vrata vjezdu do garáže a po straně je obchází povlovné cihelné schodiště. Schodiště vede na betonovou terasu, která jako tenká žiletka odděluje sokl od hlavní stavby. Tato terasa plynule přechází v balkon podepřený třemi subtilními sloupy.
Hlavní hmota budovy je podélného půdorysu, s bílou minerální omítkou a sedlovou střechou pokrytou bobrovkou. Nad přístupovými schody tvoří půdorysný úskok útulné zápraží kryté přesahem střechy. Zde je hlubší nika u vstupních dveří a nad nimi luxferové okno přisvětlující vnitřní schodiště. Po terase se dostáváme na balkon navazující na štítovou stěnu s dlouhým prosklením a drobným okýnkem v horní části štítu, jež dodává této hlavní fasádě jemnost a malebnost. Druhým směrem od vstupních dveří vstupujeme na zadní soukromější terásku se zimní zahradou a zadním vstupem do domu.
První podlaží
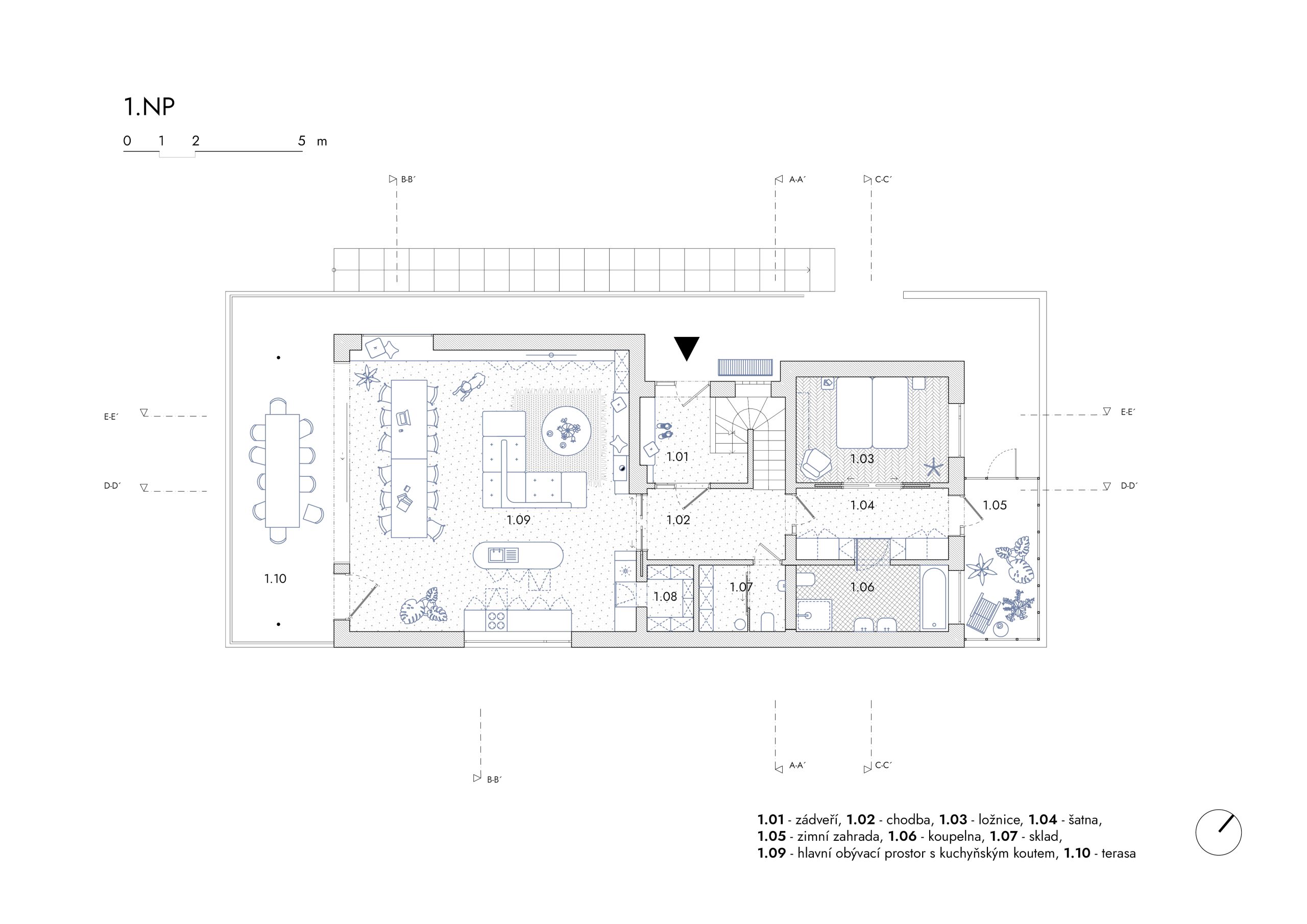
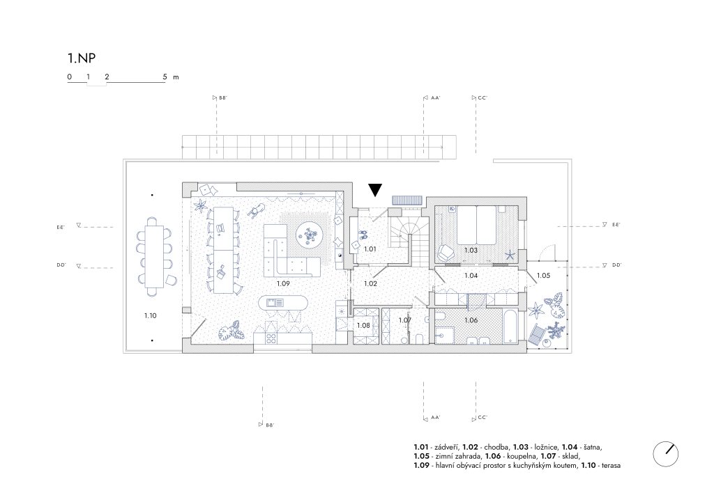
Hlavními dveřmi vstupujeme do zádveří s vestavěnou skříní a lavicí pro přezouvání. Ze zádveří vedou schody přímo do suterénu. Dále přes prosklené dveře vidíme chodbu se stěnou plnou rodinných fotografií. Z chodby se dostáváme do všech prostor domu. Propojuje vizuálně obě štítové stěny a opticky se tím zvětšuje. Celé první podlaží je propojeno jednolitou podlahou z leštěného betonu. Ta místnosti jednocuje a jemná mozaika kameniva jim dodává starosvětskou krásu.
Skrze dvoukřídlé dřevěné dveře po pravé straně vstupujeme do hlavního obytného prostoru. Zde nás okamžitě uchvátí výška, neboť obytná místnost je otevřená až k vrcholu krovu. Vidíme odhalené kleštiny a krokve zaklopené překližkou s jemnou kresbou. Projdeme přes dřevěnou nábytkovou stěnu a před sebou vidíme přes hlavní prosklení výhled na celé Uherské Hradiště a hrad Buchlov, který vévodí kopcům za ním. V obývacím pokoji je kuchyňská linka s nižším oknem s výhledem na sousední vinohrad,velký jídelní stůl, vždy připraven pohostit celou rodinu a pohovka s křesílky. V rohu místnosti je okno s hlubokým parapetem, poskytujícím prostor pro čtení. Při pohledu zpět vidíme velkou knihovnu vestavěnou na výšku stěny. Zde je také rodinný krb. Vrátíme se zpět přes chodbu a s pohledem skrze dům do zadní zimní zahrady vstoupíme do šatny. Šatna je tvořena vestavěnou skříní se skrytými dvířky do koupelny. Pouze úzký pruh dlaždiček na podlaze nám napoví, kudy se vydat. V koupelně je toaleta, sprcha a vana pod velkým oknem, které vede opět do zimní zahrady a poskytuje výhled do džungle, která se tam nachází. Ze šatny se dvojitými dveřmi dostáváme do ložnice.
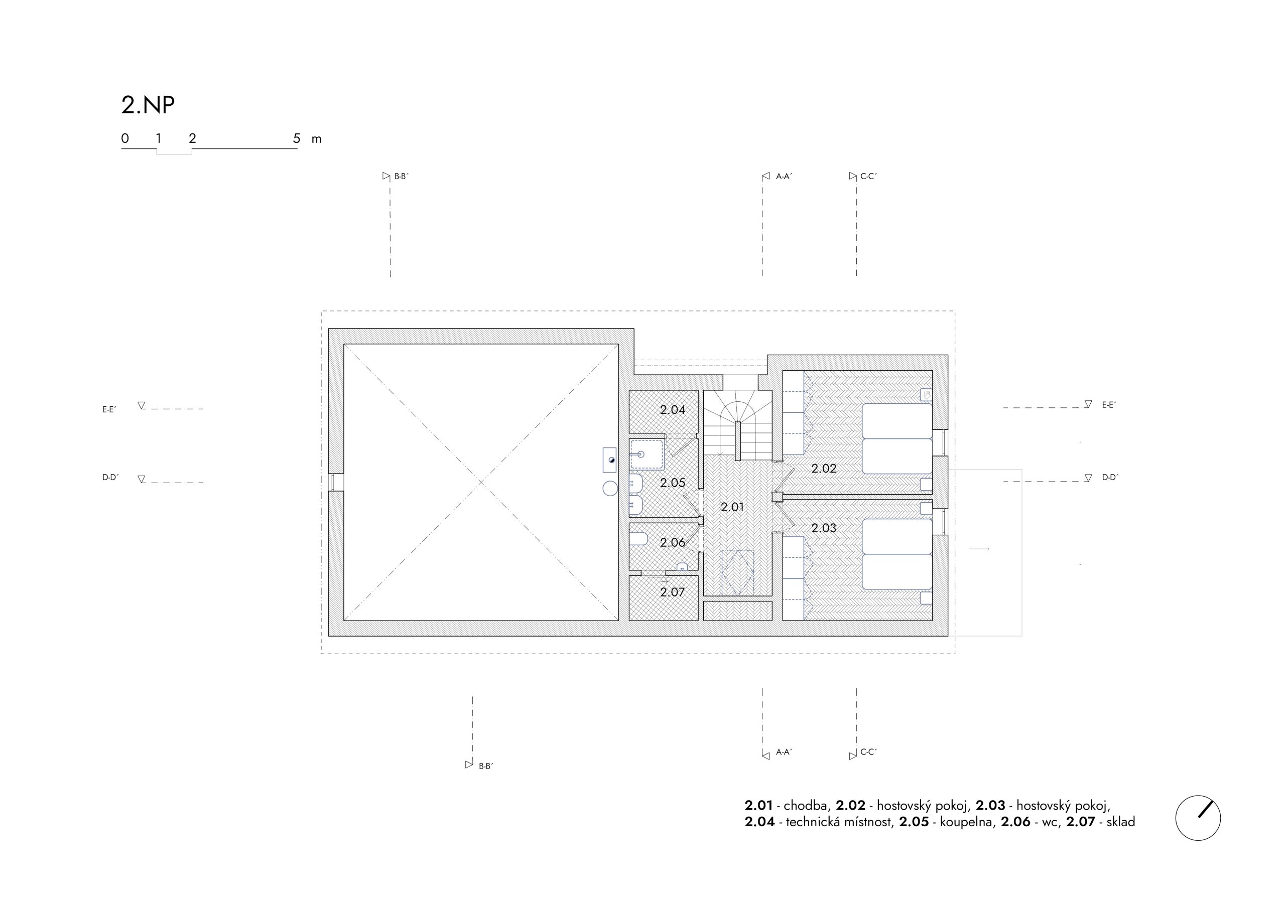
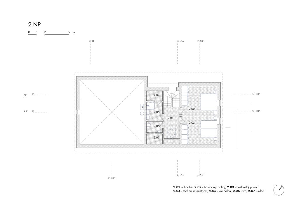
Druhé podlaží
Z chodby vystoupáme po schodišti podél luxferového okna na chodbu druhého podlaží. Z druhé strany je navíc přisvětlena střešním oknem. Podlaha chodby je dřevěná. Z chodby vedou dveře do hostovských pokojů. V těchto pokojích je opět přiznáno trámoví stropu. Na druhé straně chodby se nachází koupelna a toaleta hostů.
Suterén
V podzemním podlaží se nacházejí dvě stání pro auta. Přes malou chodbu se dostáváme ke schodišti do zádveří v prvním podlaží. Z chodby je přístupný sklep, prádelna a kotelna.
U hranice pozemku se nachází přístřešek pro obytné auto, který je možné využívat také jako pergolu pro pořádání akcí pro více lidí. Přístřešek obsahuje domek s menší kuchyní, toaletu a prostor pro ukládání zahradního nářadí. Je zde také poklop ukrývající hlavní uzávěr vody a domovní vodárnu, která zvyšuje tlak v domě, který je umístěn vysoko nad vodovodním řadem. Domek je sloupková dřevostavba bez zateplení obložená prkennou fasádou s posuvnými dveřmi na kolejnici. Funguje sezónně. Přístřešek stojí na ocelových sloupcích, ty nesou rošt z dřevěných vaznic, přes které leží vlnitý plech.
Stavba je zděná z cihel s izolací v dutinách tloušťky 440mm. Zdivo je omítané hrubou minerální omítkou. Střecha je tvořena tradičním kleštinovým krovem bez vazných trámů. Střecha je zateplena 200mm PIR izolace. Střeštní krytina je taška bobrovka. Okna a dveře jsou dřevěná.