Staré Mařatice
S ještě teplou půlkou mařackého chleba v podpaždí vystupujeme pomalu se zvedajícím kopcem. Blížíme se k našemu domu se štítem do ulice a švestkovými vraty. Jemná struktura omítky se dává poznat s každým dalším krokem. Není zřejmé, jestli byl postavený včera, nebo před sto lety. Patří sem. Klasická kompozice. Procházíme vraty pod návratí, které se rovnou otvírá na dlážděný dvůr. Před jedním z oken do přízemních pokojů zůstalo na dlažbě vytažené lehátko. Asi si někdo chtěl číst na sluníčku.
Z pod návratí vstoupíme do zádveří, kterým protéká luxferovou stěnou měkce zvlněné světlo. Procházíme do chodby, která nás protáhne útrobami domu nahoru ke světlu a k zeleni. Při stoupání po schodech se nám před očima odkrývá věčně stejný a věčně proměnný obraz zahrady rámovaný hlavním portálem. V kuchyni visí jemná vůně nedělního oběda a nadruhém konci pokoje zavěšuje do vzduchu přenoska jemné tóny. Míjíme odloženou knihu mezi poduškami na nízkém parapetu okna a musíme otevřít okno druhé. Musíme se přece podívat přes muškáty a zábradlí, jestli dole už někdo neklečí s loutnou a nezpívá. Teď ne. Můžeme si v klidu ukrojit krajíc chleba a sednout si na terasu. Posečená tráva voní.
Základní prostorové schéma
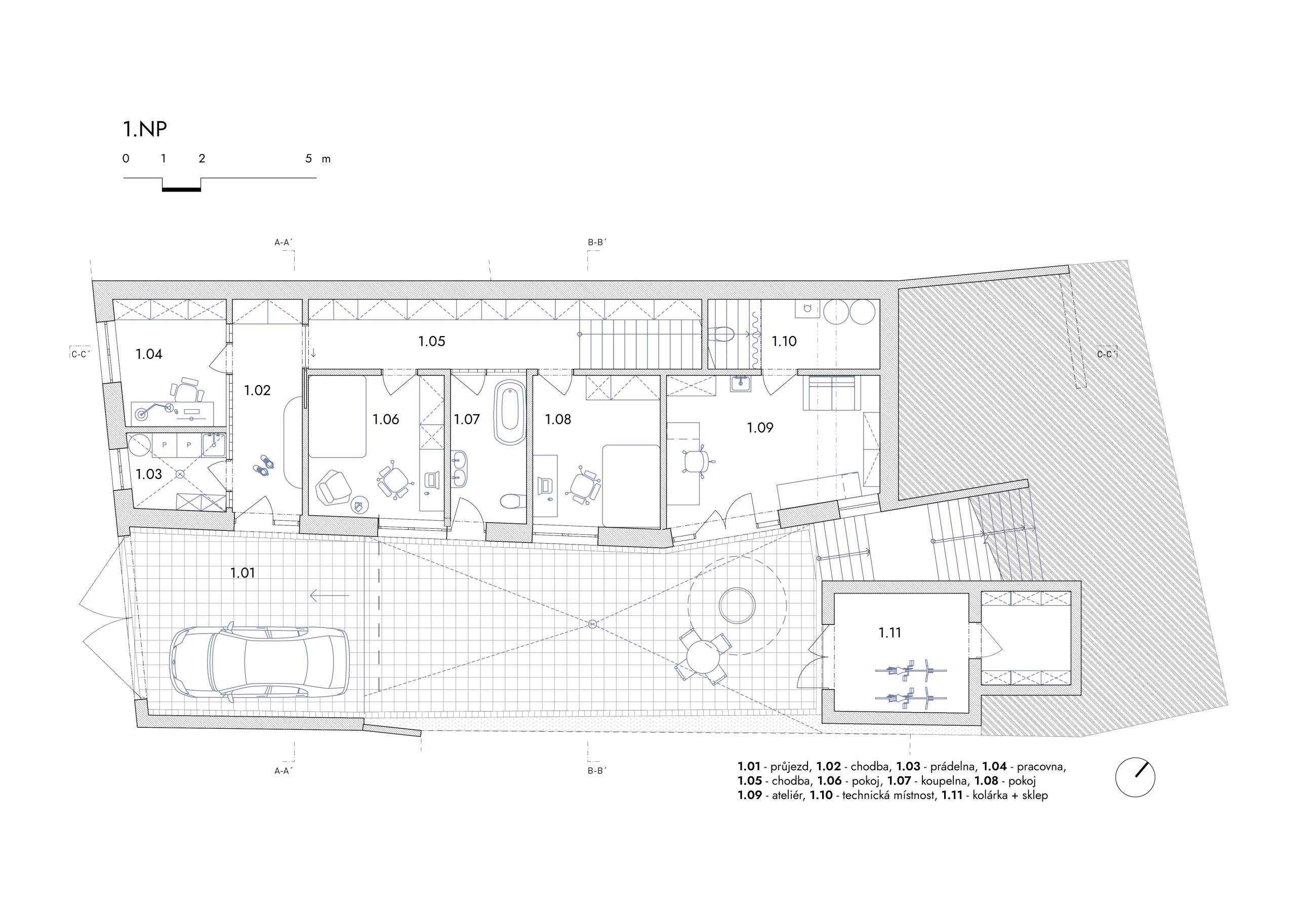
Dům je tvořen hlavním objektem orientovaným kolmo ke svahu zahrady. K čelní části přiléhá průjezd, který doplňuje uliční frontu. V zadní části dvora stojí dílna/kolárna.
První podlaží
Vraty vstupujeme do otevřeného průjezdu – krytého stání pro auto. Odtud vedou hlavní dveře do předsíně. Zde je přezouvací lavice, háčky na kabáty, vestavěná skříň. Směrem k ulici je luxferová stěna, která odděluje prádelnu a pracovnu. Navazuje chodba, která vede nejtemnější částí domu. Proto je přisvětlena nadsvětlíky nad dveřmi do pokojů a luxferovou stěnou do koupelny. Další významný zdroj světla je schodiště přímo v ose chodby. Jednotlivé dětské pokoje mají velké dvojité francouzské okno na dvůr, aby i v této spodní poloze měly dostatek světla. Koupelna má také francouzské okno, aby byla přístupná zvenku při společenských akcích, práci na zahradě atd.
Dvůr je pevný dlážděný se záhonem u stěny sousedky. Přes dvůr je přístupný ateliér. Ten má vlastní sociální zařízení a zároveň technickou místnost celého domu.
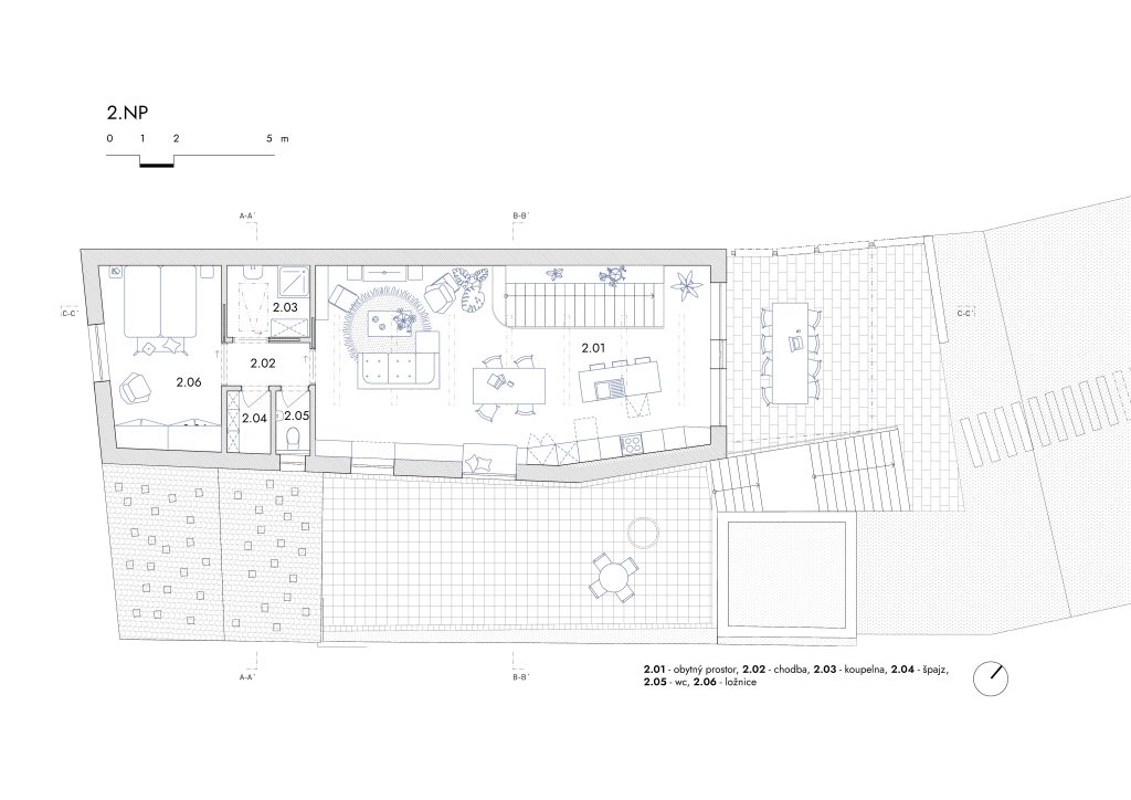
Druhé podlaží
Toto je hlavní obytné podlaží. Obsahuje velký obytný prostor s kuchyní a obývací částí. Kuchyně je tvořena linkou a ostrůvkem. Dále na ni navazuje stěna s knihovnou do které jsou začleněny dvě okna. Jedno s nízkým a hlubokým parapetem na sezení. Druhé francouzské se zábradlím, tzv. ‚Serenádní okénko‘. V zadní části dispozice je posezení se stěnou na promítání filmů. Dveřmi procházíme do soukromé části, kde je wc, sklad, samostatná koupelna a ložnice. Z prostoru u kuchyně se vychází portálem na velkou terasu přímo navazující na zahradu.