Základní prostorové schéma
Dvě jednopodlažní obdélníkové hmoty seřazené za sebou. Hlavní budova zabírá jen o málo větší půdorysnou stopu, než stavba stávající. Vedle ní přibyde nová budova sociálního zázemí.
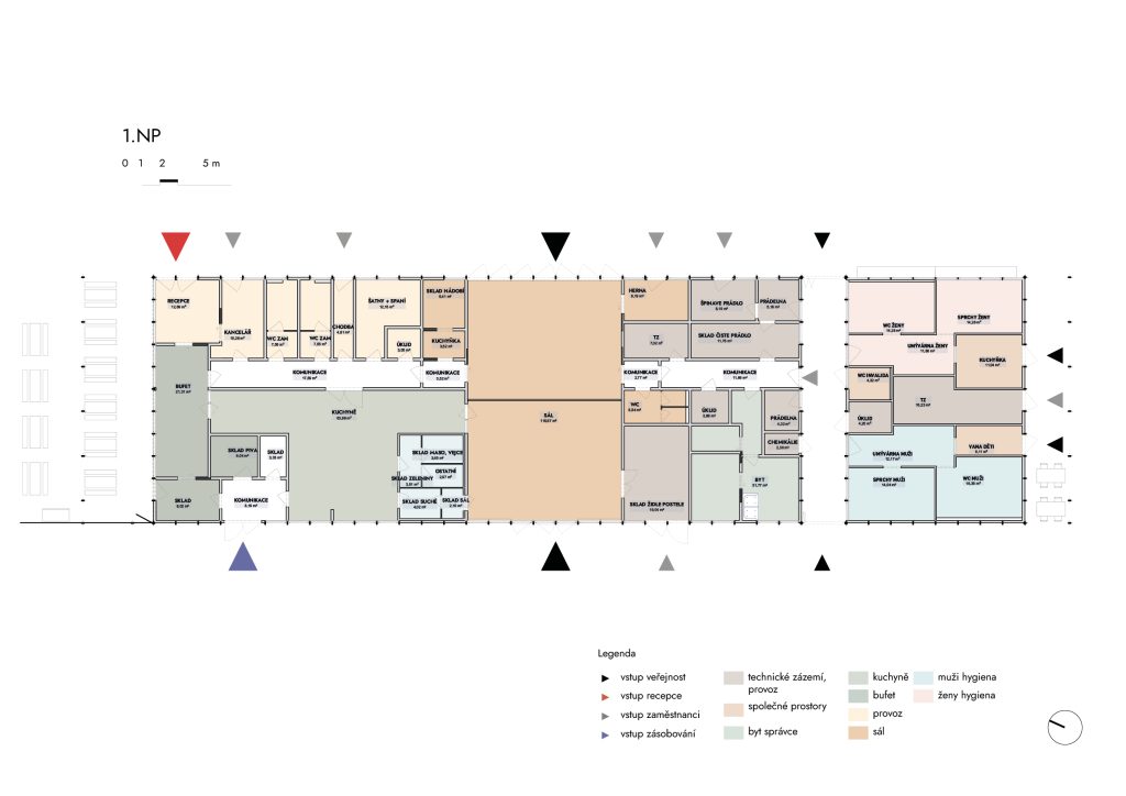
Hlavní budova
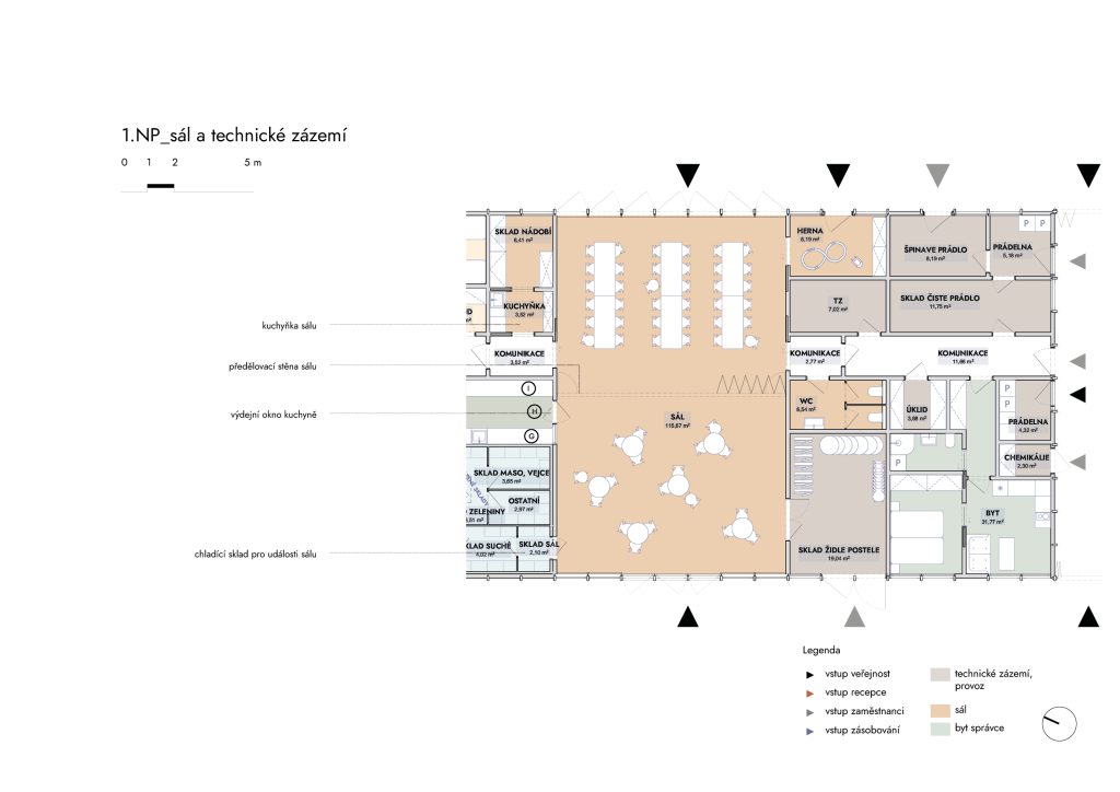
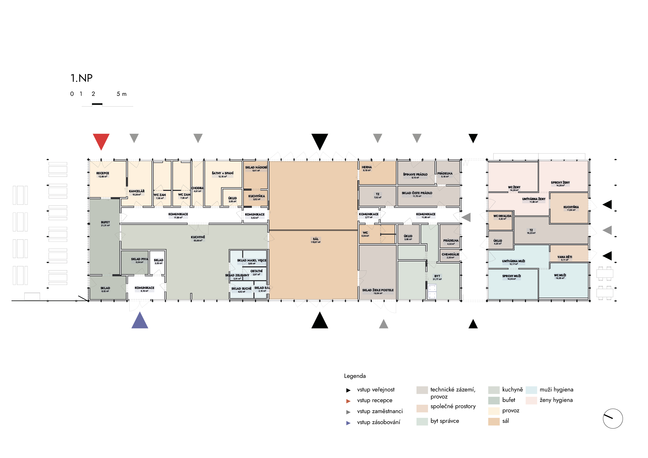
Na severní straně se nachází recepce a bufet podobně, jako ve stávajícím stavu, který se ukázal jako vyhovující. Bufet je přímo napojen na kuchyni a v mimosezóně umožňuje obsluhu obou prostor jednou osobou. Zásobování kuchyně je nově ze strany od lesa, aby se významně nekřížil provoz zásobovacích vozidel a návštěvníků, zároveň je z této strany možné zboží vyskladňovat přímo do skladů, či kuchyně. Směrem na východ – do kempu je zázemí zaměstnanců a kancelář správce. Ve střední části budovy se nachází sál prosklený na obě strany s vlastní malou kuchyňkou, hernou a sociálním zázemím. V poslední části jsou skladové prostory a byt správce.
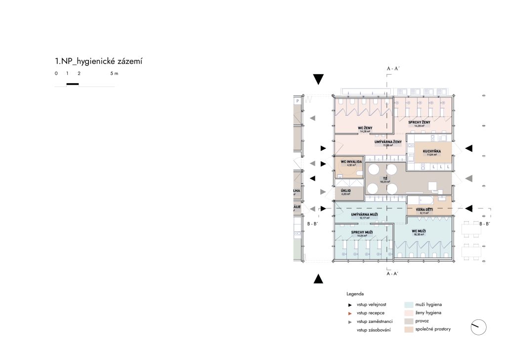
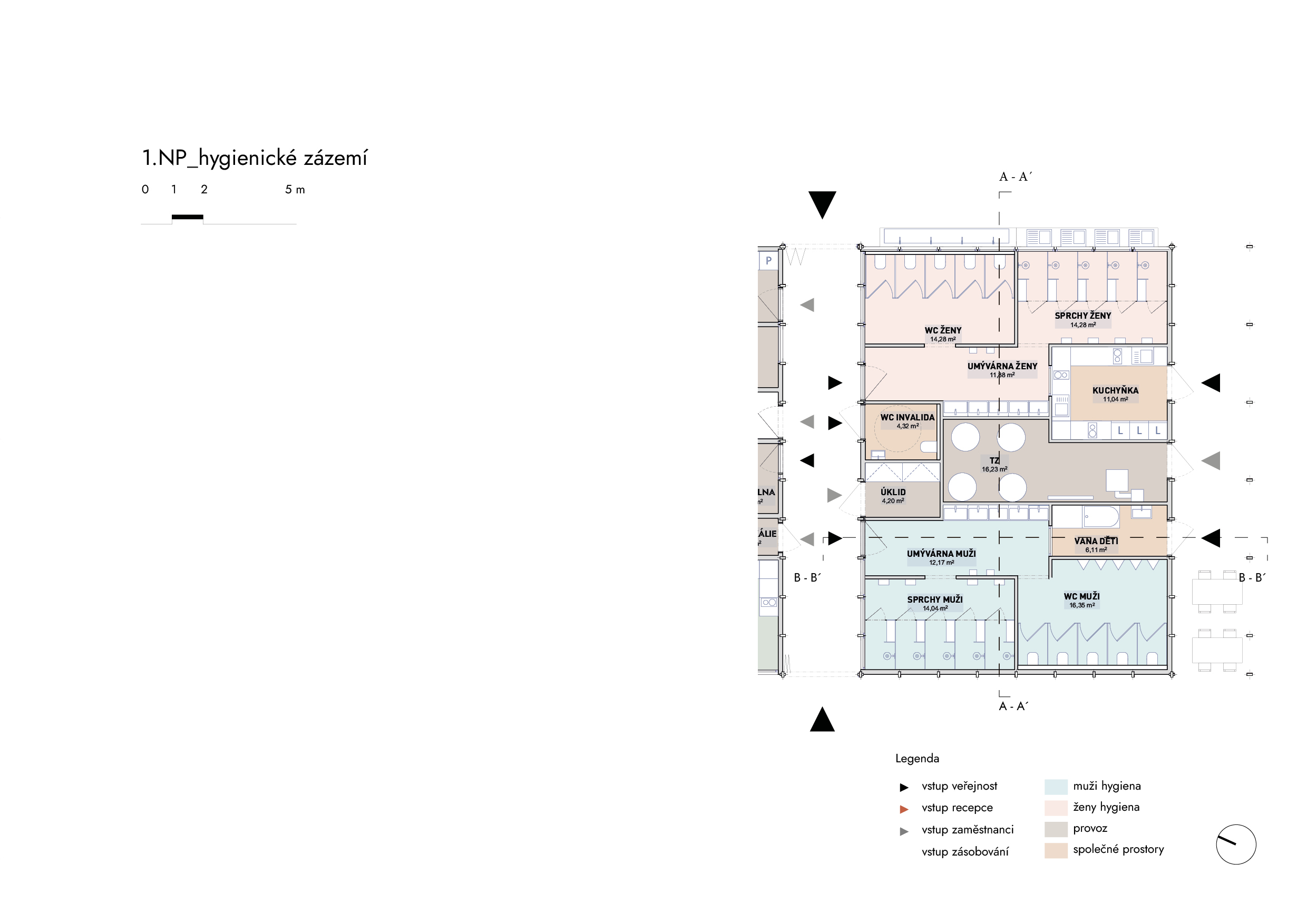
Sociální zázemí
Symetricky rozdělené na mužskou a ženskou část na východě a západě. Každá obsahuje umývárnu s pěti umyvadly, místnost se sprchami a s toaletami. Ve středním traktu se nachází wc pro invalidy, úklidová místnost, kuchyňka a technické zázemí s velkými kapacitami pro ohřev vody.
Estetika
Vizuálně budovy úmyslně navazují na stávající budovy. Asymetrické střechy s nízkým sklonem, jejichž štít je dnes pro mnohé synonymem kempu. Pravidelně členěná fasáda zůstáva silným prvkem i při různorodých výplních, které si diktují vnitřní provozy, od vysoko umístěných okének na toaletách po velká prosklení v hlavním sále.