fáze: DSP
rok: 2025
místo: Buchlovice
autor: Tereza Psotková, Štěpán Psotka

fáze: DSP
rok: 2025
místo: Buchlovice
autor: Tereza Psotková, Štěpán Psotka
Scházíme z Holého kopce, vracíme se z naší oblíbené vycházky a mezi stromy prosvítá bílá fasáda. Na místě stodoly, kde jsme měli svatbu stojí dům, kde teď žijeme. Projdeme pod stříškou, která jej propojuje se stavením rodičů a přes terásku vstupujeme do zádveří. V prosvětleném obýváku je ještě pořád teplo z kamen a děti už mizí po schodech nahoru. Pak už jenom sedíme s kávou u stolu v kuchyni a díváme se portálem do zahrady, jestli zahlédneme srnku mezi stromy.
Lapidární obdélníkový půdorys se sedlovou střechou respektující regulaci územního plánu. Na obou delších stranách domu se nachází terasy – menší, která kryje vstup na jihu a velká na sezení na severu. Dostatečný prostor v patře tvoří plnoplošné vikýře na obou stranách střechy.
První podlaží
Hlavní vstup je orientován na jih do společného dvora s původním domem rodičů. Okolo domu probíhá lehká dřevěná terasa, která tvoří zápraží a umožňuje dům obejít v jedné úrovni i přesto, že se okolní terén k východu svažuje. Zádveří obsahuje přezouvací lavici a vysokou skříň a je z něj přístupná šatna a toaleta. Dále se otevírá hlavní obytný prostor. Na východní štítové stěně je kuchyně s ostrůvkem, na jihu je sedací okno a prostor pro televizi a kamna vedle ní. Na sever je orientovaný portál na terasu a na západě je schodiště do patra a pod ním vstup do koupelny a technické místnosti.
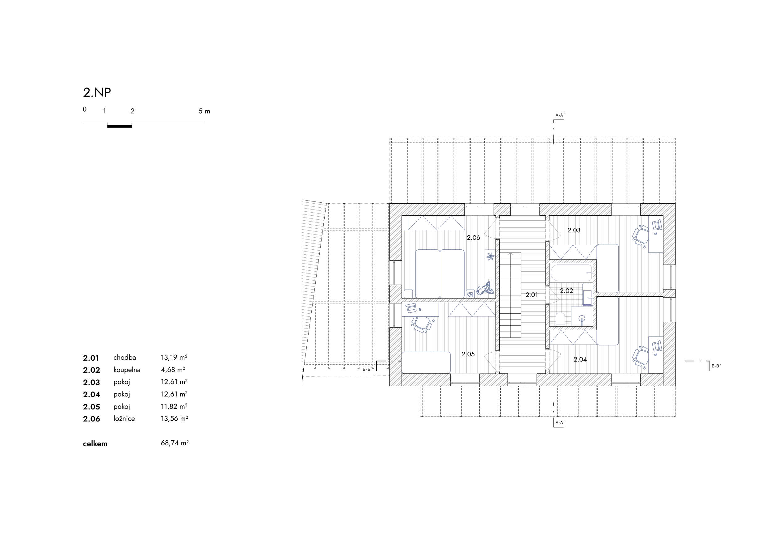
Druhé podlaží
Středová chodba je osvětlena okny z obou stran. Obsluhuje ložnici rodičů, tři dětské pokoje a koupelnu vsazenou mezi dva z nich.