Dům na pasekách
Poslední dům za dědinou. Nad Halenkovicemi na kopci u lesa vyčnívá z terénních teras střecha domu. Stojí na místě, kde dlouhá léta dům stával a ke svému předku se hrdě hlásí. Nebojí se být obyčejným vesnickým domem. Klasická sedlová střecha, půdorys tvaru L, veranda. To jsou všechno prvky, které stavbu začleňují do místního kontextu. Kolem domu vede cesta k lesu, když z ní sejdeme, projdeme brankou a kolem záhonu květin před oknem do dílny, uvítá nás cihelné zápraží. Můžeme chvíli spočinout na lavici u dveří a kryti stříškou sledovat údolí vinoucí se daleko k obzoru. Když nabereme síly vydáme se na průzkum domu samotného.
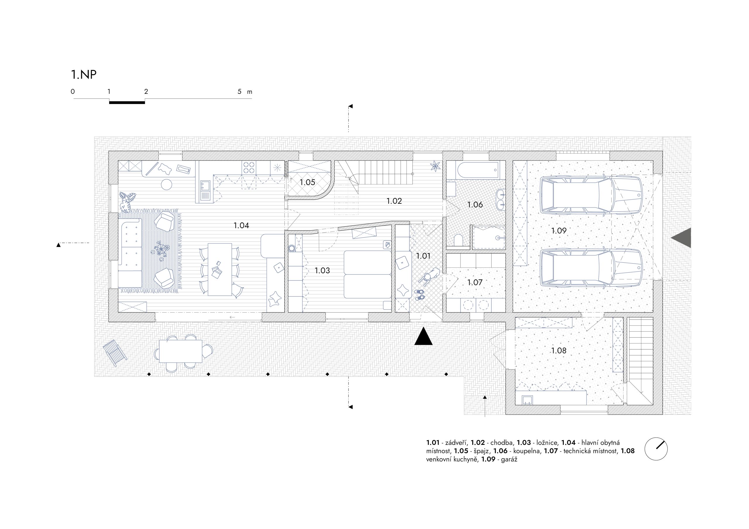
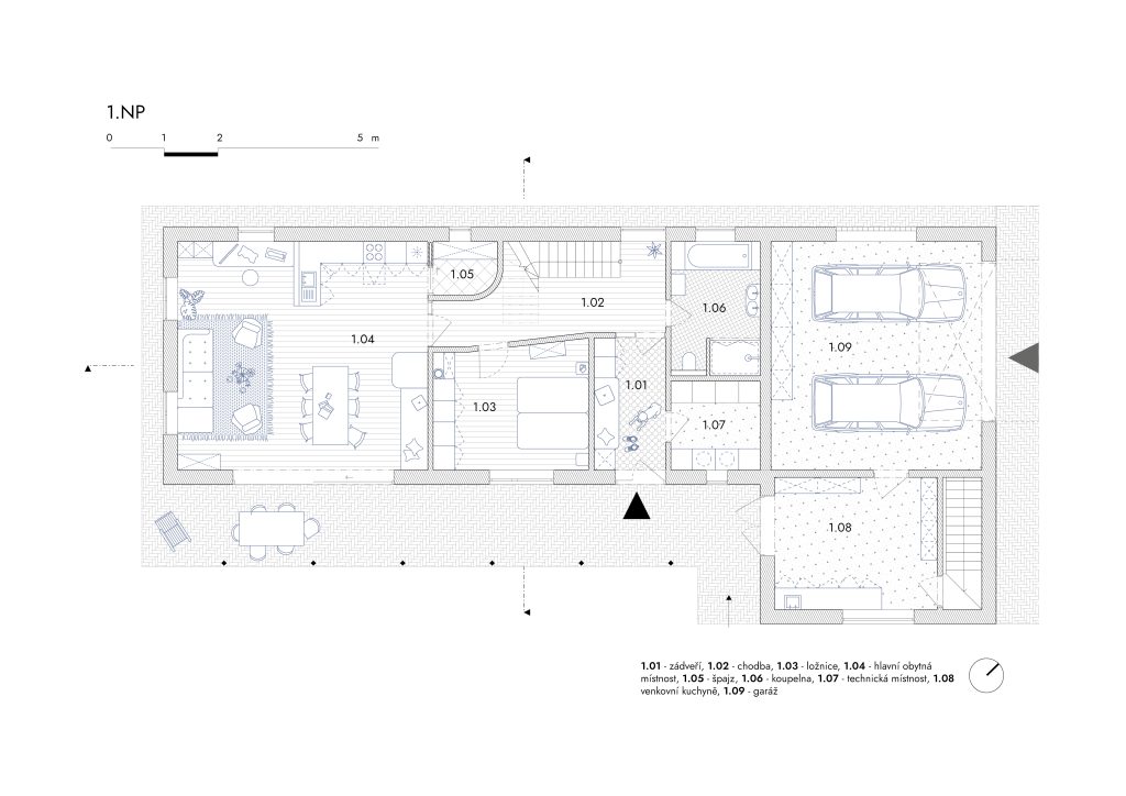
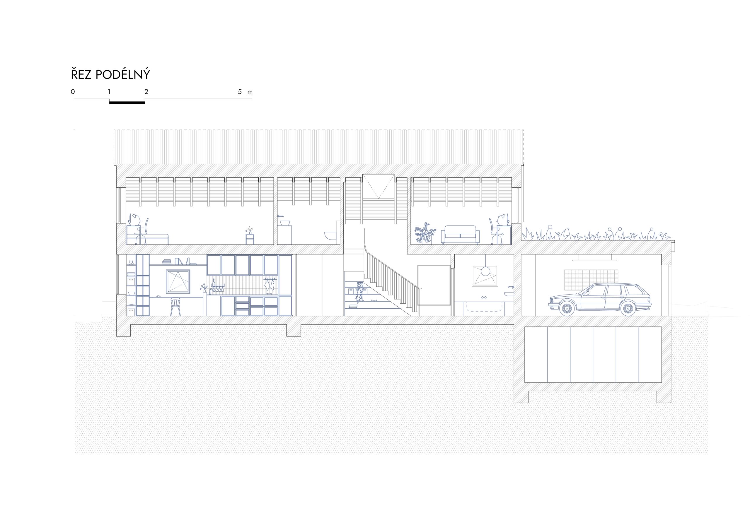
První podlaží
Vstoupíme do zádveří s vestavěnou skříní a průhledem přes okno haly vidíme skalku nad opěrnou zídkou ve svahu za domem. V hale se nachází schodiště do podkroví, vstup do koupelny, ložnice rodičů a prosklené dveře do obývacího pokoje. Sešikmení stěny ložnice lépe využívá prostor a jako trychtýř obyvatele i návštěvníky vtahuje k centrální místnosti. V obývacím pokoji nás uvítá velký portál propojující místnost s venkovní verandou nabízející úchvatný výhled do údolí. Protější stěna patří kuchyni se spíží a šicímu koutku s výhledem za dům. Vedle dveří, kterými jsme přišli jsou velká kachlová kamna, pravé srdce celého domu, která svým sáláním lákají všechny po zimních procházkách lesem.
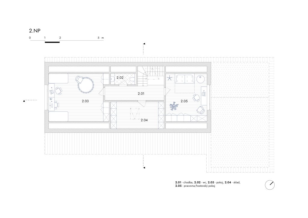
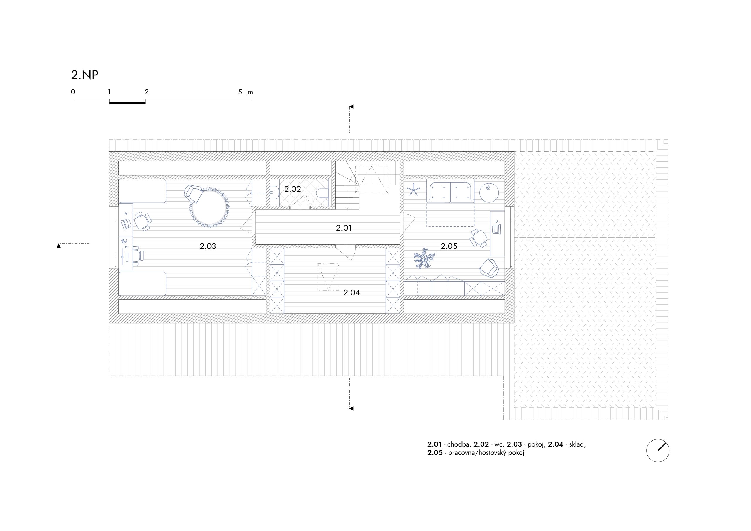
Druhé podlaží
Z haly vystoupáme po schodišti pod velkým střešním oknem na chodbu, neboli galerii druhého podlaží. Zde jsou vstupy do dvou pokojů ve štítech, do skladu a na toaletu. V severním štítě se nachází pracovna, případně hostovský pokoj s výhledem přes pastviny směrem k lesu. V jižním je dětský pokoj v bezprostředním kontaktu se stromy na jih od domu.
Technická část
Na přízemní obytnou část navazuje na technické zázemí skládající se z garáže a dílny. Garáž je přístupná vraty od příjezdové cesty a přes dílnu. Světlo sem přivádí okno z luxferových tvárnic. Sousední dílna slouží pro domácí kutění, zavařování či výrobu marmelád. Přímo z ní je přístupný sklep, kde je možné si tyto dobroty uskladnit.
Stavba je zděná z izolačních cihel. Zdivo je omítané hrubou minerální omítkou. Střecha je tvořena tradičním kleštinovým krovem bez vazných trámů. Střeštní krytina je plechová. Okna a dveře jsou dřevěná.