fáze: realizace
rok: 2022
místo: Praha
autor: Tereza Psotková, Štěpán Psotka
fotografie: Radek Úlehla
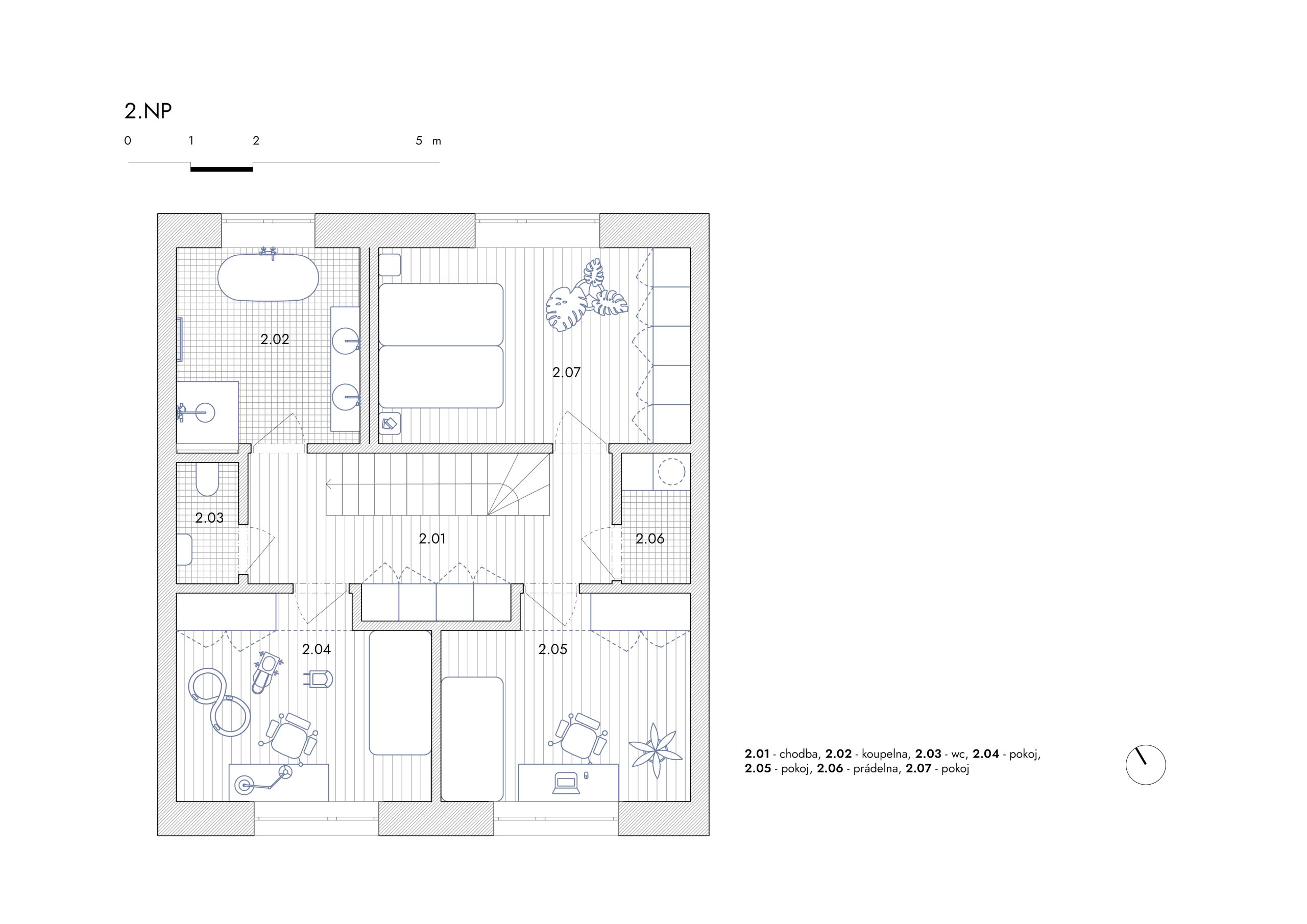
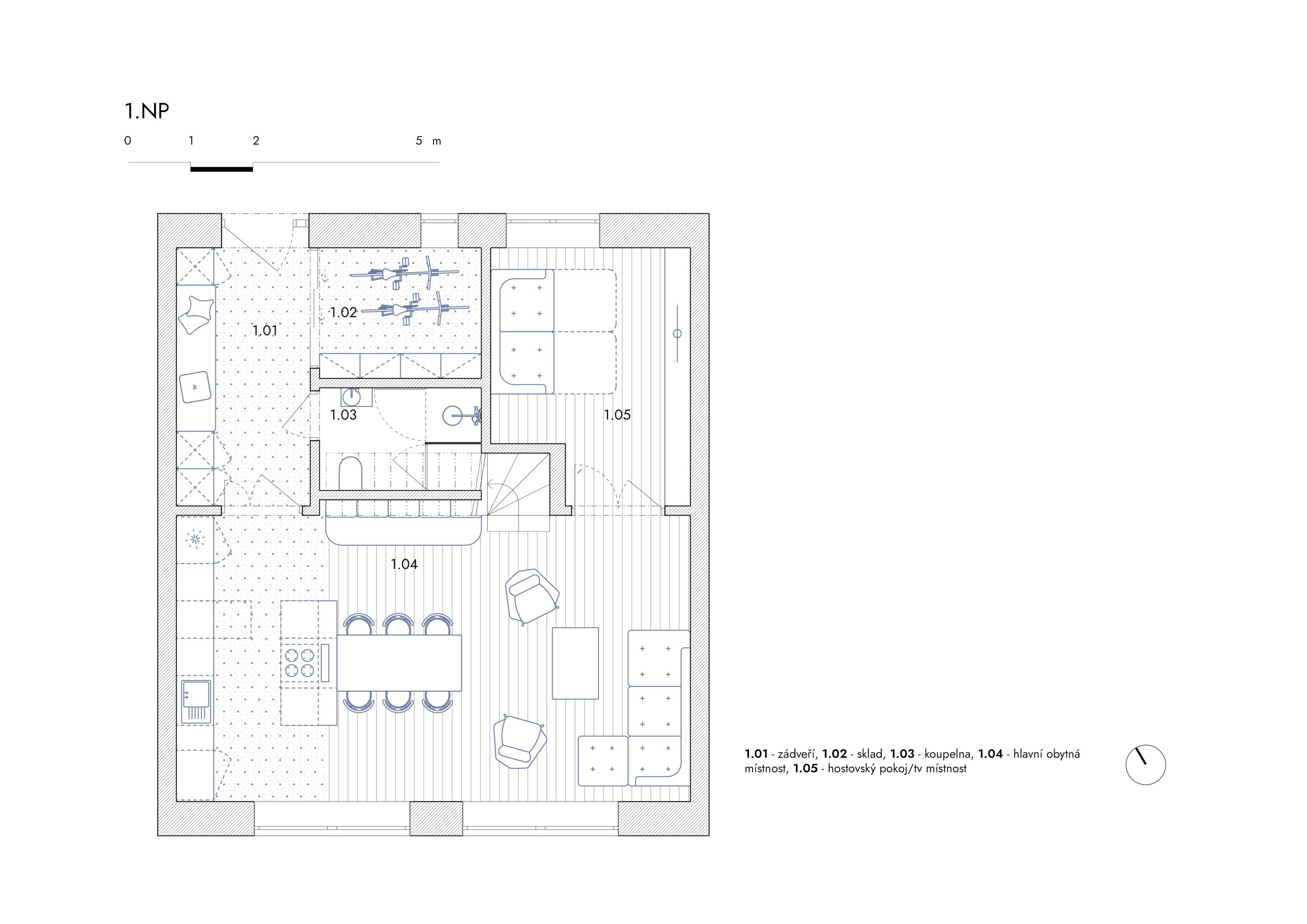
Dům v proluce
Doplnění proluky v pražských Ďáblicích. Na okraji zástavby řadových domů ze 70. let navrhujeme rodinný dům, který vstoupí nenásilně do svého kontextu. Klidná vstupní fasáda s břizolitovou omítkou dotváří uliční frontu. V dispozičním řešení bylo cílem maximalizovat užitnost a nalézt moderní středostavovský standard. Zádveří s drobným skladem, který nahrazuje sklep a umožňuje uložení kočárků, kol a dalších větších věcí. Na zádveří navazuje přímo kuchyně. Tyto části, které jsou více pracovní propojuje i pevnější terazzová podlaha. Na kuchyni navazuje obytný prostor propojený se zahradou dvěma portály. Ve středu celého půdorysu se nachází hlavní schodiště, které směrem do obytného prostoru obsahuje knihovnu a na druhé straně je prostor pod ním využit pro koupelnu a wc. Poslední místností přízemí je pracovna. V patře schodiště obíhá středová chodba s vestavěnou skříní. Na jejích kratších koncích se nachází prádelna a wc. Směrem do zahrady jsou zde symetrické dětské pokoje. Směrem do ulice pak koupelna a ložnice rodičů. Pokoje i ložnice jsou otevřeny do krovu. Technické zařízení domu je uloženo v půdičce nad chodbou. Pro dům jsme navrhli veškeré truhlářské výrobky.


























