fáze: v realizaci
rok: 2025
místo: Uherské Hradiště
autor: Tereza Psotková, Štěpán Psotka
fotografie: Radek Úlehla
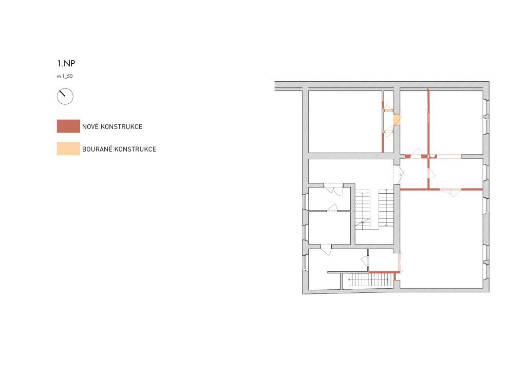
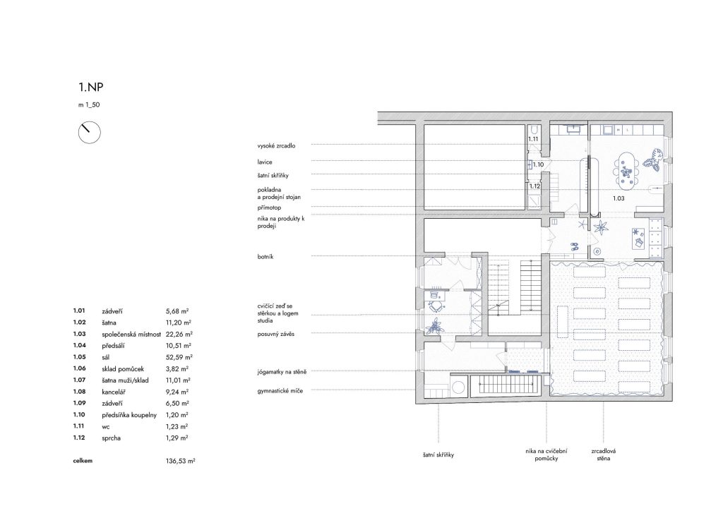
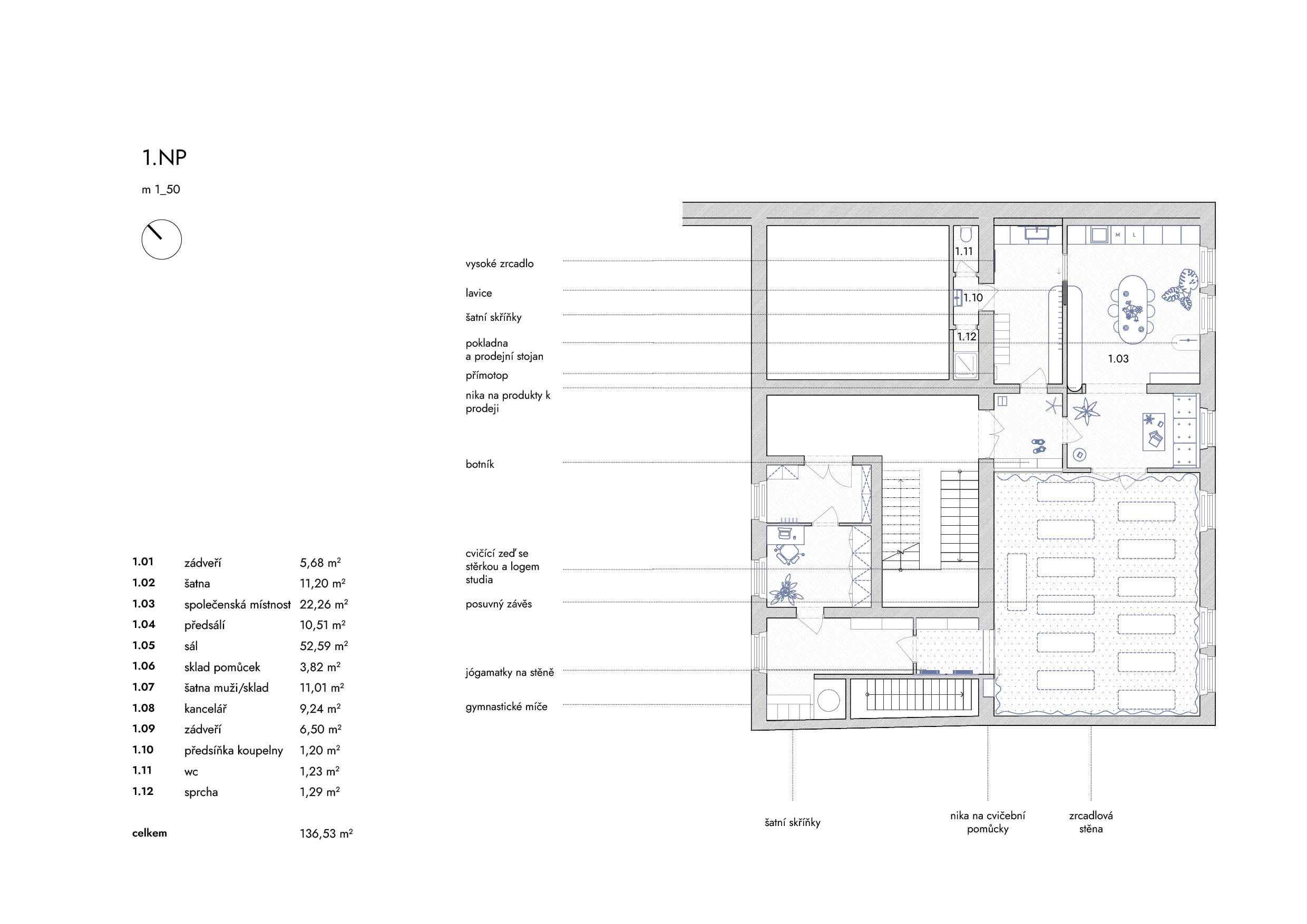
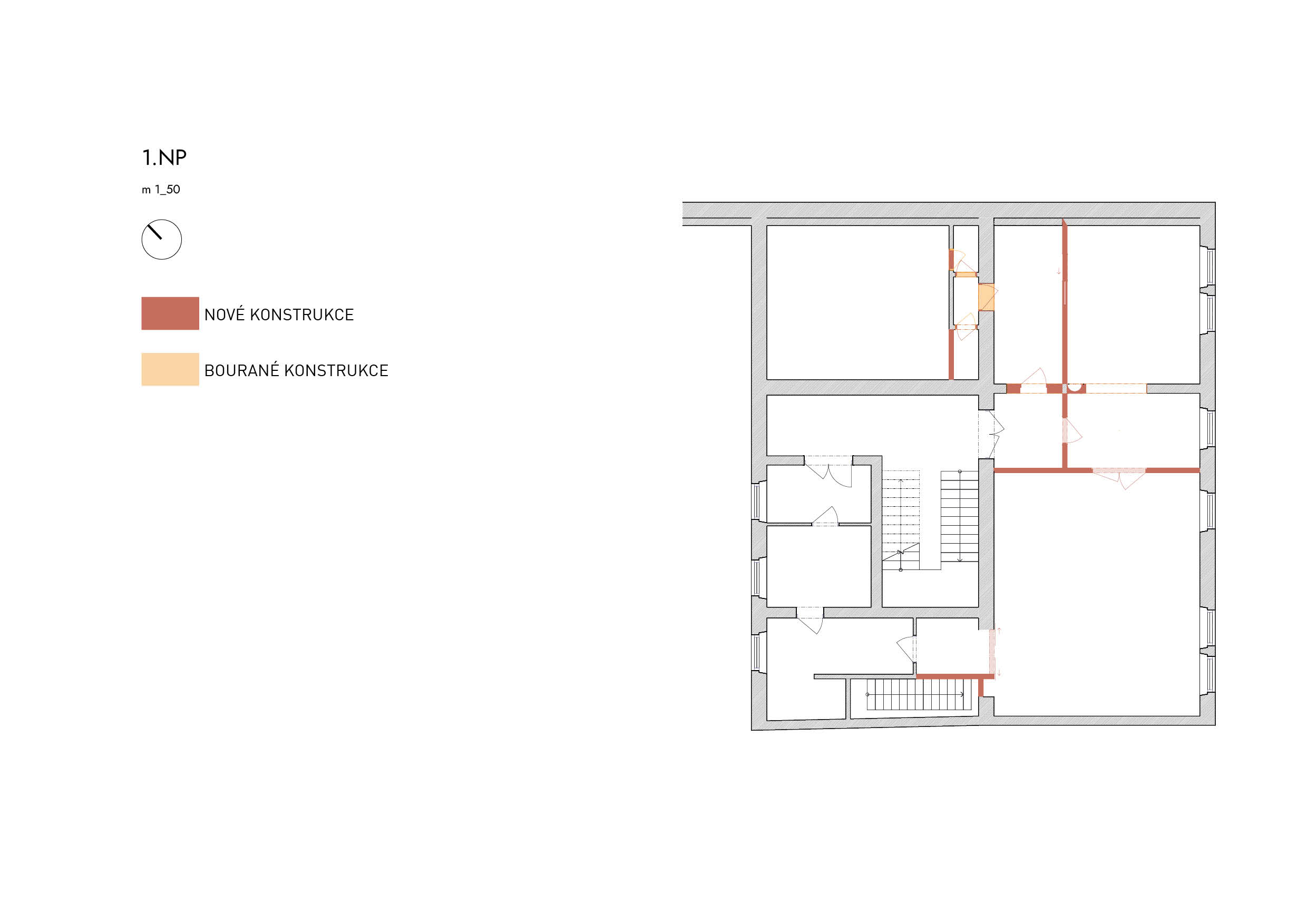
Yoga studio Nádražní
Vycházím po kamenných schodech historického domu v centru města a beru za mosaznou kliku vysokých dvoukřídlých dveří, stejně jako každý týden. Potud je to rutina, ale když projdu dveřmi, jako bych vstupovala do jiného světa. Měkké světlo v předsíni a jemná vůně santalového dřeva začnou zklidňovat moje myšlenky. V šatně po převlečení spláchnu z obličeje pomyslný prach cest a všednodenního shonu. Pak už jenom pár slov s přáteli u stolu ve společné místnosti a pomalu se přesouváme do sálu. Podlaha jemně pruží pod bosýma nohama a zlatý kruh na stěně se leskne jako druhé slunce. Pozdravíme je surja namaskar a čas jendoduše plyne až do naprostého uvolnění šavásany.
















